Description de l'offre
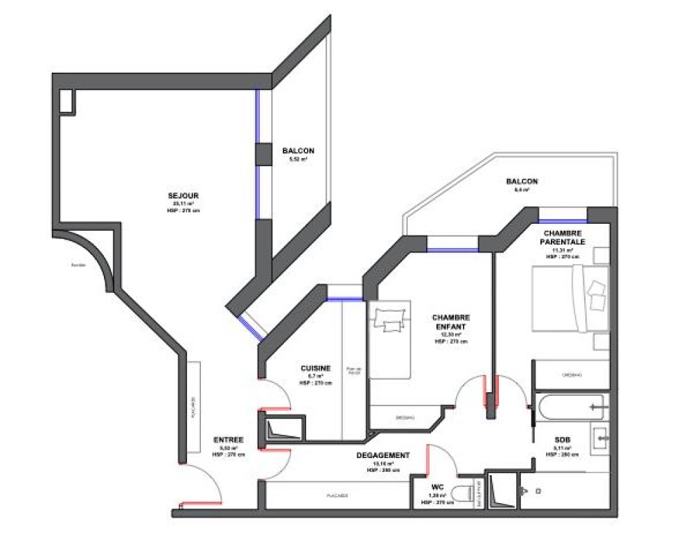
Proche de la Mairie de Neuilly sur Seine, l'Agence Immobilière Royalimmo vous propose ,dans un immeuble semi-récent de standing un appartement de 3 pièces de 76,77 m2 au 1er étage avec ascenseur. Ce bien se compose d'une belle cuisine dinatoire séparée,équipée et aménagée,d'une belle pièce de vie ouvrant sur un balcon filant vu sur le jardin intèrieur de l'immeuble. L'espace nuit offre deux belles chambres,une salle de bains avec douche et des WC séparés. Nombreux rangements et dégagements finalisent cet appartement avec des matèriaux de qualités. A proximité de tous commerces et commodités,(métro ligne 1),sectorisation École primaire (Ecole Bleue rue Madeleine Michelis),Collége et Lycée Pasteur. Une cave compléte ce bien Possibilité de parking en sus du prix Â




